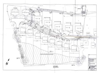
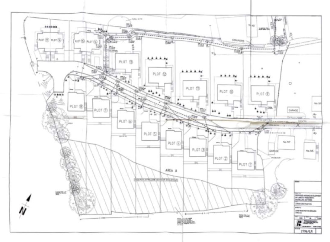
An exciting and rare opportunity to purchase a package of 12 fully serviced plots with full planning permission in a prime residential location in the beautiful and historic market town of Dolgellau. With demand for housing in the area at a premium this development will provide a range of sought after attractive properties across all budgets.
Access for vehicles and plant is excellent and the plots are situated in a an elevated position with glorious open views across the town and the surrounding hills and countryside. The development is a 10 minute walk from the bustling town centre.
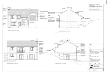
The package consists of 12 fully serviced good sized plots with detailed planning for;
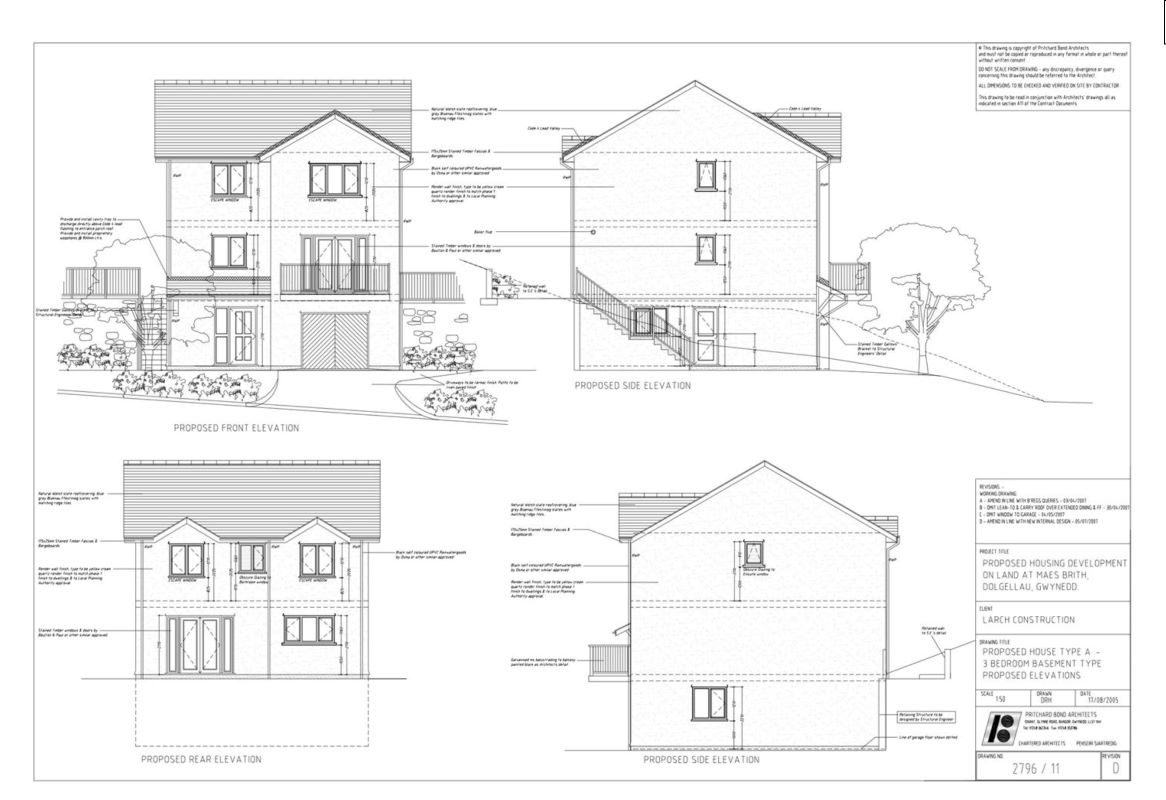
3 No. 'Type A' 3-4 bedroom, 3 storey detached with integral garage, ensuite to principal, balcony, utility, driveway parking, garden.
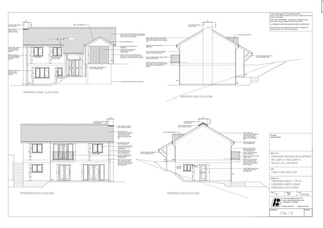
5 No. 'Type B' 3 bedroom, 2 storey detached with garage, ensuite to principal, utility, driveway parking, garden.
4 'No. Type C' 2 bedroom, 2 storey semi-detached, driveway parking, garden.
* Generally speaking Guide Prices are provided as an indication of each seller's minimum expectation, i.e. 'The Reserve'. They are not necessarily figures which a property will sell for and may change at any time prior to the auction. Virtually every property will be offered subject to a Reserve (a figure below which the Auctioneer cannot sell the property during the auction) which we expect will be set within the Guide Range or no more than 10% above a single figure Guide.
Submit an enquiry and someone will be in contact shortly.
By setting a proxy bid, the system will automatically bid on your behalf to maintain your position as the highest bidder, up to your proxy bid amount. If you are outbid, you will be notified via email so you can opt to increase your bid if you so choose.
If two of more users place identical bids, the bid that was placed first takes precedence, and this includes proxy bids.
Another bidder placed an automatic proxy bid greater or equal to the bid you have just placed. You will need to bid again to stand a chance of winning.